Gratis Inserat
z.B. sie sucht ihn | hund | katze | massage | mobilheim | maiensäss | pudel | maltipoo | bkh katze | heimarbeit | pomeranian | chihuahua | frau sucht mann



HM9741 - Appartamento di nuova costruzione a Caslano

430'000.-

  25.10.25


Lageplan   Drucken   Betrug melden


Nel caratteristico comune di Caslano, in zona pianeggiante, sorge un complesso residenziale di nuova costruzione composto da due palazzine, ubicate in zona strategica, a due passi dalla stazione del trenino per raggiungere la città ed a pochi minuti dal confine Italo-svizzero.
La location è una perfetta combinazione per coloro che sono alla ricerca di un abitazione confortevole e moderna in una zona più decentrata rispetto ai centri cittadini, con clima favorevole e soleggiato, ma allo stesso tempo comoda e ben servita da tutti i mezzi, negozi e servizi.

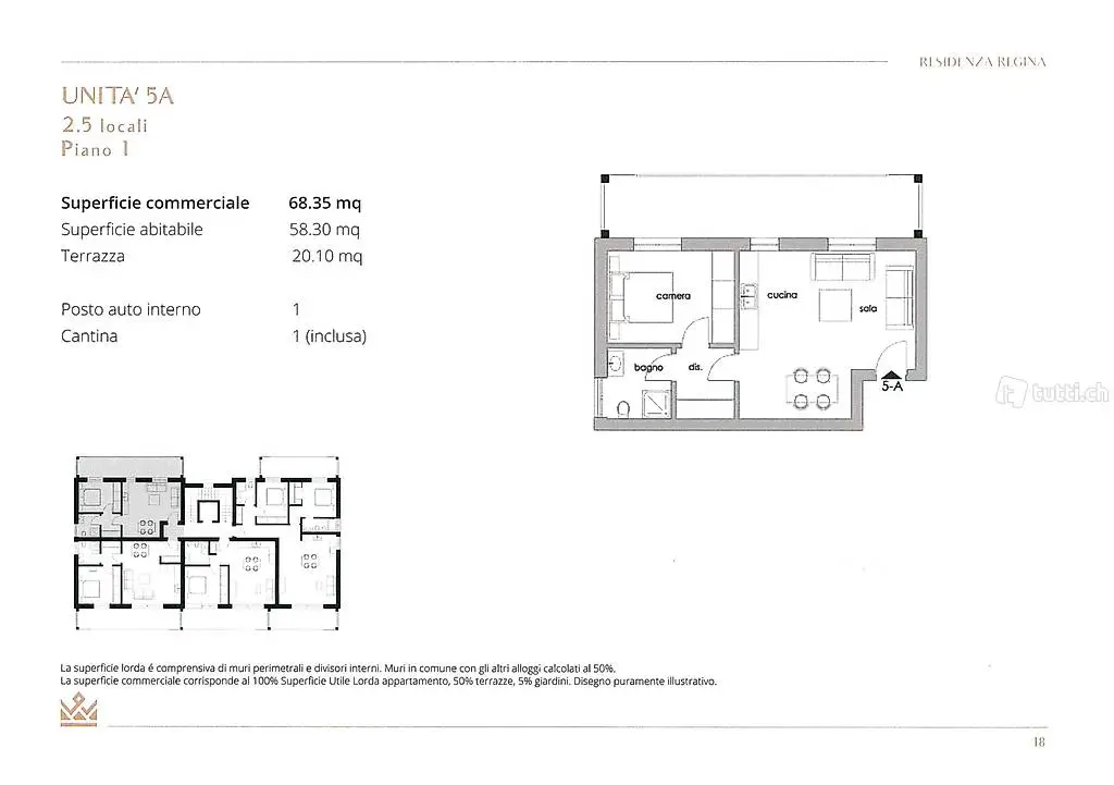
Proponiamo un appartamento di 2.5 locali al primo piano, dove si può trascorrere del tempo in relax. All'entrata dell' appartamento troverete un atrio accogliente che conduce alla cucina openspace che affaccia sul soggiorno dal quale si accede alla terrazza.
Sulla sinistra disimpegno con accesso al bagno con doccia, lavandino e wc.
Dallo stesso lato troviamo la camera da letto che affaccia sempre sulla terrazza.
A completare troviamo un parcheggio in autorimessa a CHF 40'000 e la cantina.
Consegna: 2023


👑 Besuche jetzt unsere neue Community

Inserat17816820
Preis430'000 CHF
Zimmer2.5
Fläche68
KategorieImmobilien
UnterkategorieWohnungen
TypAngebot
InserentFirma
studio immobiliare ticino
Caslano
6900 Lugano (TI)
  091 922 93 33
Alle Inserate dieses Anbieters

Kontakt